Ficha
Se vende local de peluquería de 250m2 en funcionamiento.
Vitoria-Gasteiz (Lovaina) - REF. 1014

240 m2
venta: 325.000 €
alquiler: 1.500 €/mes
Descripción

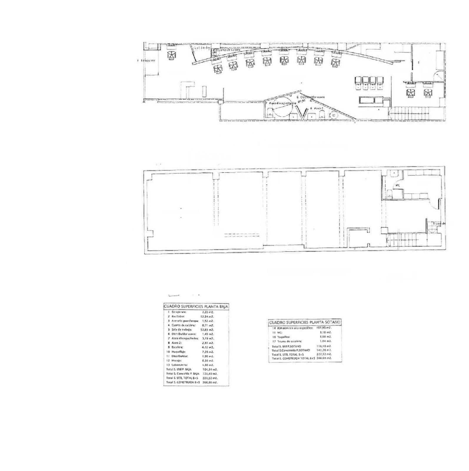
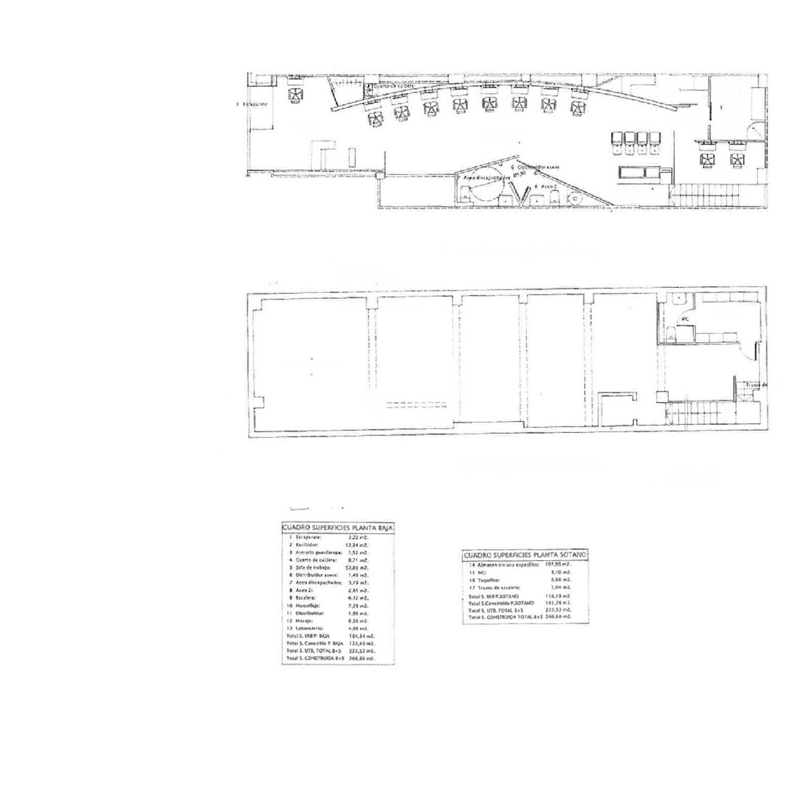
Se vende local comercial en Adriano VI de 250,57 m² distribuidos en planta baja (122,12 m²) y planta sótano (128,45 m²). En la planta baja funciona actualmente una peluquería completamente equipada y en marcha, con una buena cartera de clientes.

La planta sótano está acondicionada como zona de descanso y taquillas y cuenta con un espacio destinado a formación, lo que aporta versatilidad para crecer o reorganizar la actividad.

La ubicación y la superficie ofrecen muchas posibilidades de explotación. Los estatutos de la comunidad permiten la instalación de salida de humos y de una chimenea por el patio, así como la apertura de lucernarios si se requiere luz natural adicional. Estas actuaciones, aunque permitidas por estatutos, deberán realizarse conforme a la normativa vigente y quedarán supeditadas a proyecto técnico y a la obtención de las licencias municipales correspondientes.

Es un local en una zona muy buena que admite continuar con el uso actual de peluquería o adaptarse a otros usos compatibles. Los propietarios están abiertos a diferentes fórmulas de operación: venta, alquiler con traspaso o alquiler con opción a compra. Se ofrece información detallada en visita concertada.


Características
Precio Venta 325.000 €
Precio/m² 1.354
Precio Alquiler 1.500 €/mes
Construidos 240 m2
Útiles 200 m2
Calificación Energética En trámite
Escalas de eficiencia



Tu agente
Marta
Contáctanos

Si deseas más información sobre esta propiedad, por favor, rellena el formulario.

 Sí, he leído y/o acepto las Condiciones de uso y la Política de privacidad